- Woonoppervlakte
- Circa 120 m²
- Perceeloppervlakte
- Circa 675 m²
- Bouwjaar
- Gebouwd in 1956
- Aantal kamers
- 8 kamers (4 slaapkamers)
Vrijstaand wonen met karakter, rust en een groene tuin rondom
In een rustige, groene woonomgeving en nabij het centrum van Melick ligt deze charmante vrijstaande woning op ruim perceel met eigen oprit, vier slaapkamers en een fraai aangelegde tuin die volledig rondom de woning is gelegen. Een huis met een warme uitstraling, een prettige indeling en een bijzondere sfeer die je direct bij binnenkomst voelt.
Kelder
De kelder biedt praktische bergruimte en is ideaal voor voorraad of opslag.
Begane grond
Via de entree met trapopgang en toiletruimte betreedt u de woning. De woonkamer ademt karakter dankzij de markante schouw met open haard en de grote raampartijen die zorgen voor een mooie lichtinval en zicht op het omliggende groen.
Grenzend aan de woonkamer ligt de gesloten keuken. Vanuit hier bereikt u de eetkamer, een aangename en lichte ruimte die zich uitstekend leent voor diners en gezellige momenten. De eetkamer biedt bovendien directe toegang tot zowel de berging als de tuin, waardoor de verbinding met buiten prettig en praktisch is.
Eerste verdieping
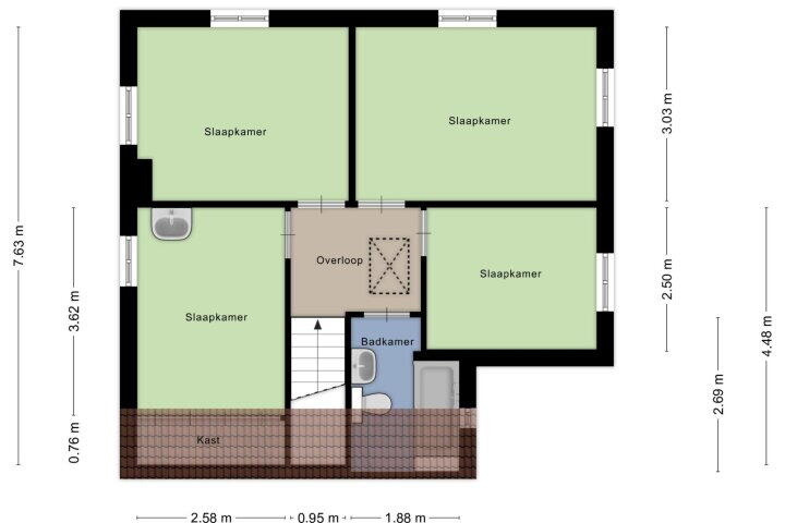
De eerste verdieping biedt plaats aan vier volwaardige slaapkamers, ieder met een prettige maatvoering en natuurlijke lichtinval. De badkamer is uitgerust met een ligbad, toilet en wastafel. De praktische indeling maakt deze verdieping comfortabel en veelzijdig in gebruik, passend bij uiteenlopende woonwensen.
Zolder
De zolder biedt extra bergruimte.
Buitenruimte
De tuin vormt een groene omlijsting rondom de woning en biedt volop privacy dankzij volwassen hagen en bomen. Er zijn meerdere terrassen aanwezig, een vijverpartij en diverse zitplekken, waardoor er altijd een fijne plek in zon of schaduw te vinden is.
De royale oprit biedt parkeergelegenheid op eigen terrein.
Locatie
De woning is uitstekend gelegen in een rustige en kindvriendelijke woonwijk, ideaal voor wie een huis wil kopen in de regio Roermond. Alle dagelijkse voorzieningen zoals supermarkten, basisscholen, sportverenigingen en winkels bevinden zich op korte afstand. Daarnaast geniet u van de prachtige natuur van het Roerdal met diverse wandel- en fietsroutes in de directe omgeving. Dankzij de gunstige ligging nabij de A73 bent u binnen 5 minuten op de snelweg en bereikt u binnen 10 minuten het centrum van Roermond, met een ruim aanbod aan winkels, horeca en het Designer Outlet Roermond.
Bijzonderheden:
- Perceeloppervlakte ca. 675 m²;
- Woning op een centrale maar rustige ligging in Melick;
- Bouwjaar 1956;
- Energielabel F;
Algemene verkoopinformatie
• Deze informatie is door STERCKWONEN makelaardij met zorg samengesteld. Desondanks wordt geen aansprakelijkheid aanvaard voor eventuele onvolledigheden, onjuistheden of de gevolgen daarvan.
• Alle opgegeven maten, oppervlakten en inhoud zijn indicatief. De meetinstructie is gebaseerd op de NEN2580 (en NTA 2581). Deze meetinstructie is bedoeld om op eenduidige wijze een indicatie van de gebruiksoppervlakte te geven. Verschillen in meetuitkomsten blijven mogelijk door interpretatieverschillen, afrondingen en/of beperkingen bij het uitvoeren van de meting. Eventuele plattegronden dienen uitsluitend als globale indicatie/visualisatie. Hieraan kunnen geen rechten worden ontleend.
• Conform artikel 7:2 Burgerlijk Wetboek geldt (voor zover sprake is van een particuliere koper) dat er pas sprake is van een rechtsgeldige koopovereenkomst indien deze schriftelijk is vastgelegd en door partijen is ondertekend. Een mondelinge overeenstemming is niet rechtsgeldig.
• Een koper/geïnteresseerde heeft een eigen onderzoeksplicht en is gerechtigd om voor eigen rekening een bouwkundige keuring te (laten) verrichten en/of adviseurs te raadplegen teneinde een goed inzicht te verkrijgen in de bouwkundige staat, het gebruik en de eigenschappen van de onroerende zaak.
• Koper dient zichzelf te informeren over publiekrechtelijke beperkingen, vergunningen, bestemmingsplan, (toekomstige) gebruiksmogelijkheden en eventuele erfdienstbaarheden of andere bijzondere lasten en beperkingen.
• Als essentiële verkoopvoorwaarden zullen in de koopovereenkomst o.a. een ouderdomsclausule, een niet-zelfbewoningsclausule en een asbestclausule worden opgenomen. Deze clausules maken integraal onderdeel uit van de afspraken tussen partijen.
Kenmerken
Overdracht
- Vraagprijs
- € 399.000 k.k.
- Status
- Beschikbaar
- Aanvaarding
- Direct
Bouw
- Object type
- Eengezinswoning, vrijstaande woning
- Soort bouw
- Bestaande bouw
- Bouwjaar
- 1956
- Soort dak
- Zadeldak bedekt met pannen
Oppervlakte en inhoud
- Woonoppervlakte
- 120 m²
- Perceeloppervlakte
- 675 m²
- Inhoud
- 509 m³
- Overige inpandige ruimte
- 17 m²
- Externe bergruimte
- 5 m²
- Gebouwgeb. buitenruimte
- 14 m²
Indeling
- Aantal kamers
- 8 kamers (4 slaapkamers)
- Aantal badkamers
- 1 badkamers (1 toilet)
- Badkamervoorzieningen
- Ligbad, wasbak
- Aantal woonlagen
- 4 woonlagen
- Voorzieningen
- Open haard, airconditioning, open haard
Energie
- Energielabel
- F
- Energielabel registratie
- 10-02-2026
- Verwarming
- Cv-ketel, open haard
- Warm water
- Cv-ketel
- Cv ketel
- Nefit proline nxt hrc 30/cw5, gas, combiketel, uit 2022, eigendom
Buitenruimte
- Ligging
- Aan rustige weg, in centrum
- Tuin
- Garden around, garden around, zonneterras
Energieverbruik in Melick
Energielabel deze woning
Energielabel F
Publicatie energielabel: 10-02-2026
Stroomverbruik per jaar
(Gemiddelde vrijstaande woning in Melick)
Gasverbruik per jaar
(Gemiddelde vrijstaande woning in Melick)
* Cijfers zijn afkomstig van het CBS en bedoeld als indicatie en kunnen verschillen voor deze woning
Indicatie hypotheeklasten
Eigen inleg:
Spaargeld / overwaarde
Rente:
Laagste 10-jaars rente
Laagste 10-jaars rente
2,78% - Centraal Beheer Groen... - NHG
3,04% - Centraal Beheer Groen... - 80%
Laagste 20-jaars rente
3,29% - Centraal Beheer Groen... - NHG
3,52% - Centraal Beheer Groen... - 80%
Laagste 30-jaars rente
3,41% - Centraal Beheer Groen... - NHG
3,7% - Argenta Groen Hypotheek... - 80%
Hypotheek:
Bruto maandlasten: € 0 p/m
Netto maandlasten: € 0 p/m
Hoe berekenen we dit?
Het rentepercentage is gebaseerd op de laagste 10 jaars vaste rente voor één hypotheekdeel. De vermelde rente (2.78% met NHG) is gecontroleerd op 11-03-2026. Deze berekening is gebaseerd op een annuïteitenhypotheek die volledig wordt afgelost, waarbij de maandlasten gedurende de gehele looptijd gelijk blijven. De werkelijke rente en netto maandlasten kunnen variëren, afhankelijk van uw persoonlijke situatie en de hypotheekverstrekker. Raadpleeg een financieel adviseur voor een nauwkeurige berekening en advies. Aan deze berekening kunnen geen rechten worden ontleend; het dient enkel als indicatie.
Documentatie
Kadastrale kaart
Leefomgeving
Plattegronden PDF
WOZ waarderapport
BAG uittreksel
Brochure
Energielabel - Bernhardstraat 4 Melick
Bezichtiging
Bod uitbrengen
Waardebepaling
Zoekopdracht
Alles downloaden
Zonnegrenzen bekijken
Inwoners in Melick
Cijfers voor postcodegebied 6074
- Totaal aantal inwoners
- 3615 inwoners
- Mannen
- 50%
- Vrouwen
- 50%
Inwoners in Melick
Cijfers voor postcodegebied 6074
- tot 15 jaar
- 15%
- 15 tot 25 jaar
- 9%
- 25 tot 35 jaar
- 21%
- 45 tot 65 jaar
- 29%
- 65 en ouder
- 25%
Huishoudens in Melick
Cijfers voor postcodegebied 6074
- Eenpersoons zonder kinderen
- 31%
- Meerpersoons zonder kinderen
- 35%
- Huishoudens zonder kinderen
- 66%
Huishoudens in Melick
Cijfers voor postcodegebied 6074
- Huishoudens met één kind
- 7%
- Huishoudens met meerdere kinderen
- 27%
- Huishoudens met kinderen
- 34%
Woningen in Melick
Cijfers voor postcodegebied 6074
- Woningen voor 1945
- 7%
- Woningen tussen 1945 en 1965
- 16%
- Woningen tussen 1965 en 1975
- 31%
- Woningen tussen 1975 en 1985
- 19%
- Woningen tussen 1985 en 1995
- 13%
Woningen in Melick
Cijfers voor postcodegebied 6074
- Woningen tussen 1995 en 2005
- 9%
- Woningen tussen 2005 en 2015
- 6%
- Woningen na 2015
- 1%
- Huurwoningen
- 20%
- Koopwoningen
- 80%
Overige in Melick
Cijfers voor postcodegebied 6074
- Gemiddelde WOZ waarde
- € 229.000,-
- Personen onder de 65 met uitkering
- 8%
Overige in Melick
Cijfers voor postcodegebied 6074
- Adressen per km²
- 488
- Stedelijkheid (schaal 1 op 5)
- 20%
Wilt u ook ontzorgd worden?
STERCKWONEN is de makelaar met gespecialiseerde kennis en een uitgebreid netwerk. We bieden persoonlijk contact en besteden veel aandacht aan u als verkoper of verhuurder, en natuurlijk aan de toekomstige koper of huurder van uw woning. Onze aanpak draait om volledige ontzorging, zodat u zich geen zorgen hoeft te maken over het verkoop- of verhuurproces.
We zorgen ervoor dat uw woning optimaal wordt gepresenteerd op zowel landelijke als lokale woningsites, zodat het bereik zo groot mogelijk is onder woningzoekenden. Voor de verhuur richten we ons naast de particuliere markt en expats ook op samenwerkingen met HR-afdelingen van grote multinationals. Dit geeft u de kans om uw woning snel en professioneel te verhuren, met zekerheid van een betrouwbare huurder.
Nieuwste reviews
-
Kyle Bouwens
Ik ben ontzettend tevreden over deze makelaar. Vanaf het eerste contact was de communicatie duidelijk, professioneel en prettig. Er werd goe...
-
Sebastiaan Sikkink
Beoordeeld met een 5
-
M
Al vanaf het begin weinig vertrouwen in deze makelaar . Helaas door verkopende partij gekozen. Gebruikt als tussenpersoon aangezien de verko...